Townsville Flats

Townsville, Queensland, Australia


The plan amplifies the stunning front and laterals views to the water, as well as rear views back to Castle Hill. Neighboring buildings are masked from the dwelling units by angling sidewalls, allowing centrally located spaces views of the waterfront. The structure throughout is white precast concrete.

 

The aesthetic is generated by maximizing and expressing the use of devices that make the building energy efficient. Front and rear decks on all dwelling units are conceived of as virtual rooms with operable hardwood shuttering on the front and rear planes of the building, allowing maximum operable flexibility of open and closed positions. Folding glass walls behind the shutters allow decks to be fully integrated with the adjacent living spaces.

 

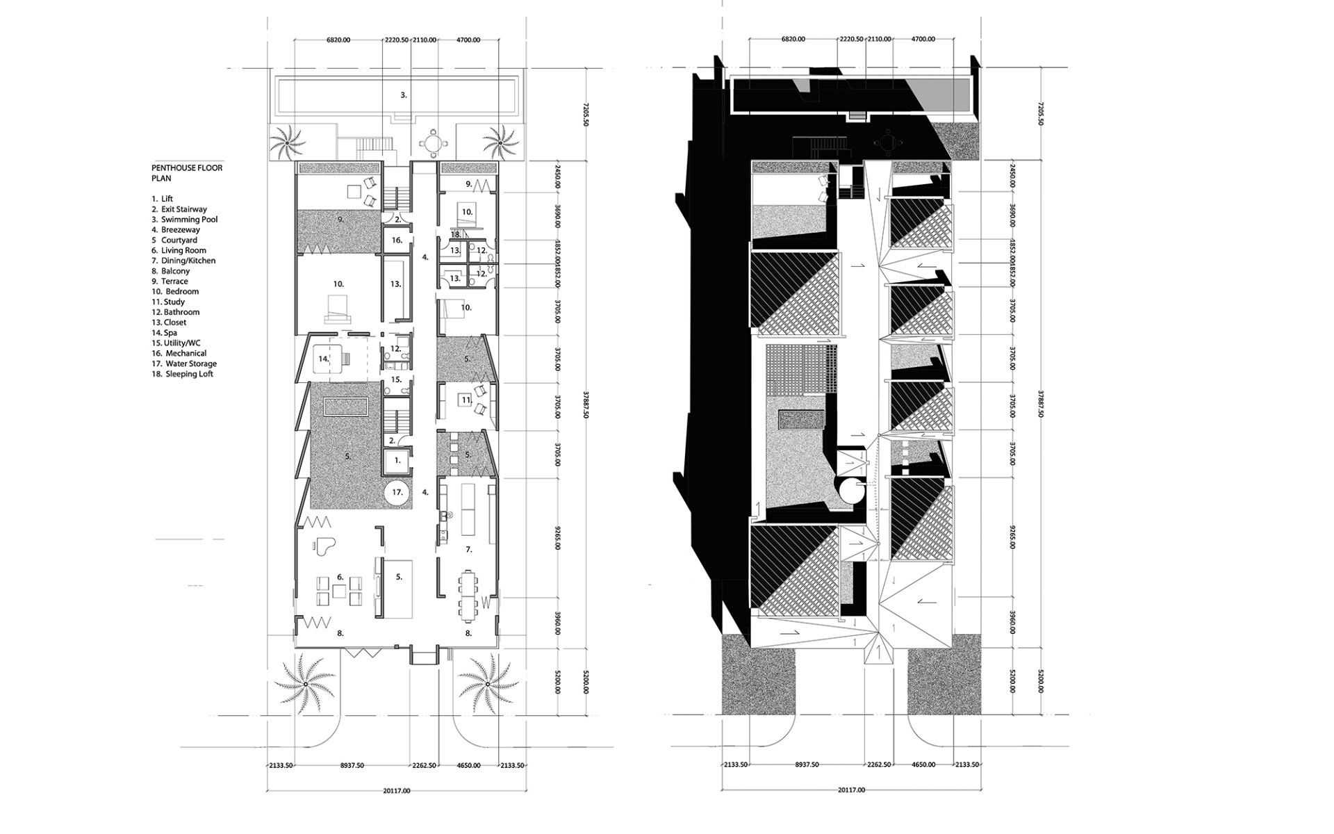
The Penthouse features a series of interconnected small pavilions, divided by courtyards, all connected to a breezeway that runs the length of the building. Pavilion roofs with integrated photovoltaic solar collectors are torqued to the north to maximize solar exposure. A system of gutters and roofs channel water to storage containers located on the penthouse and entrance floor.

Commissioned Project: 2010-14

Design Associates: Workus Studio